
パチンコ・パチスロ店専門の図面作成代行。客室面積の変更、島設備の建替えなど迅速かつ精密に対応致します
リニューアルに伴う変更承認申請、営業所面積・客室面積の変更届出を完全サポート。ミリ単位の誤差も許されないパチンコ店の図面作成は、経験豊富な当事務所にお任せください。
こんなお悩みありませんか
- 島の建替えを行いたいが、設備屋さんの作成した図面は添付書類に使えないと言われた
- 所轄署の実地検査で図面の不備を指摘され、オープンが遅れるのが怖い
- リニューアルまで時間がない。大至急、構造変更の書類を作ってほしい
- 変更届と変更承認申請、どちらが必要なケースか判断に迷っている
- 自動販売機を入れ替ただけなのに、所轄から客室面積が変わると指摘を受けた
- 最新の島配置に対応した営業所床面積、客室面積の載った図面が欲しい
- グランドオープン時に作成された古い紙ベースの図面しか手元にない
そのお悩みを解決致します!
弊所行政書士、木下みのりはパチンコ店経営を始めとして、販売代理店営業、店舗管理者、組合長、県遊協の副理事長など遊技業業界における様々な実務経験を有しております。パチンコ店の図面作成代行は、実績豊富な当事務所にお任せください。
図面作成代行の一例
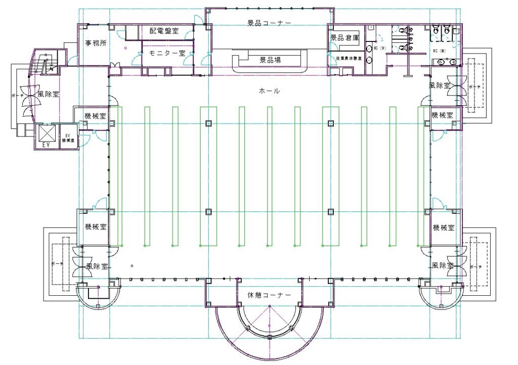
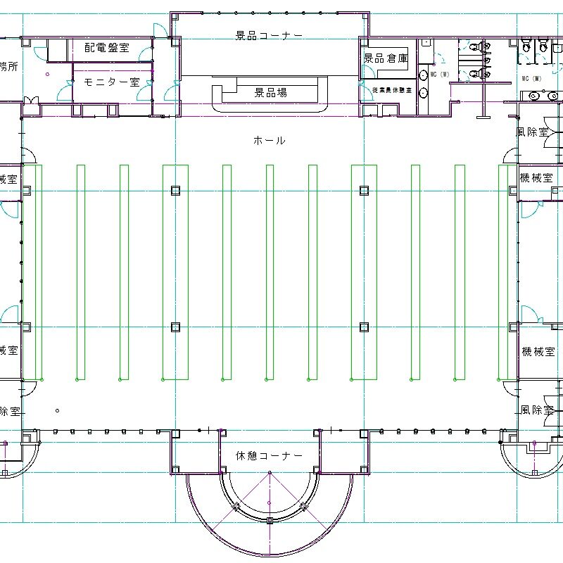
- 営業所平面図(営業所面積・客室面積を疎明するもの)
- 音響・照明音響設備
- 営業所求積図
- 客室等求積図
- 設備図(島やカウンター等の設備寸法記載)
対応エリアと、ご依頼の流れ
北海道から沖縄まで全国対応致します
事前のWEB会議で迅速なヒアリングを行い、警察署との事前相談はもちろんのこと、現地での計測をスムーズに進めます。納品も郵送・データ納品を両立して地域を問わず均一な高品質サービスを提供します。
また当事務所は現地警察署の独自ルール(ローカルルール)にも柔軟に対応いたします。
最短翌日出張も可能(要相談)
- STEP 1:無料相談・スピード見積り
- お電話やZoom、Google Meetで状況をヒアリング。必要な図面の範囲を特定し、最短当日にお見積書をメール送付します。

- STEP 2:資料送付(旧図面・店舗写真など)
- 既存の図面データや店内の写真をメール等で共有いただきます。これにより、事前調査の時間を大幅に短縮します。

- STEP 3:現地調査(スピーディな出張計測)
- 全国どこへでも伺います。最新のレーザー距離計を用い、営業を妨げないよう迅速に現場計測(営業所・客室・島間など)を行います。閉店後の深夜対応も可能です(要相談)

- STEP 4:CAD作図・修正対応
- 計測データを元に、高精度なCAD図面を作成。修正が必要な場合もデジタルデータで即座に対応し、納品前の最終確認をオンラインで行います。

- STEP 5:書類発送・申請サポート
- 完成した図面データをメール等で迅速送信。所轄警察署への提出方法や、検査が必要な場合の注意点まで丁寧にアドバイスいたします。

価格プランのご案内※500台まで基本料金一律
法人様、店舗様のニーズに合わせたプランをご用意しております。店舗図面(既存のもの)をいただければ、正確なお見積りを提示します。お見積りは無料!(料金はすべて税込です)
図面作成代行
変更承認申請書向けのプラン
平面図を始めとする図面作成のご依頼にお答えするプランです。お気軽にお問い合わせください。
- 基本料金
- 500台までの店舗様:77,700円
- +500台を超える台数につき台数×110円
※フロアが分かれる場合または複合施設併設店舗(コンビニ・フードコート等)の場合は別途お見積りとなります。
- 提供内容
- 事前相談(店舗様・必要な場合は警察署)
- 現地計測
- CADでの図面作成
- 営業所の平面図(営業所床面積・客室面積を疎明する図面)など
◎全国データ納品可
既存の図面をメールでお送りいただければ、全国どこでも作図対応。現地測量が必要な場合も、出張費を抑えたプランをご提案します。
既存図面書替
変更届出書向けのプラン
客室床面積の軽微な変更や図面のデータ化など、現地計測不要な、ご依頼にお答えするプランです。
- 基本料金
- 55,000円
- +変更内容に依りますので、まずはご相談ください
※フロアが分かれる場合または複合施設併設店舗(コンビニ・フードコート等)の場合は別途お見積りとなります。
- 提供内容
- 事前相談(店舗様・必要な場合は警察署)
- CADでの図面作成
- 営業所の平面図(営業所床面積・客室面積を疎明する図面)など、ご要望の図面
◎全国データ納品可
既存の図面をメールでお送りいただければ、全国どこでも作図対応。現地測量が必要な場合も、出張費を抑えたプランをご提案します。
・割引システムについて
リピート法人様割引や複数店舗同時のご依頼で基本報酬割引
・旅費交通費について
交通費は「新幹線・航空機・レンタカー」等の実費のみを申し受けます。※事前にお見積りいたします。また、新台入替やリニューアル時期に合わせて、近隣チェーン店舗様と日程を調整できる場合は、交通費をシェア(割引)することも可能です。お気軽にご相談ください。
図面作成代行以外にも、客室面積の変更に伴う変更届出書の作成や構造設備変更に伴う変更承認申請書の作成なども、承りますので、お気軽にお問い合わせください。

LINEでお問合せ
-
営業所平面図(または求積図)の作成のみをお願いすることは可能ですか?
-
はい、喜んで承ります。
「申請書類の作成や提出は自社で行いたいが、正確な図面だけをプロに外注したい」というニーズにも柔軟に対応いたします。
-
営業を止めずに現地測量をお願いできますか?
-
もちろん可能です。開店前や閉店後のメンテナンス時間、または稼働の少ない時間帯を狙って、営業の邪魔にならないよう迅速にレーザー測量を行います。
-
以前に別の業者が作った図面が不正確なのですが、修正できますか?
-
はい、対応可能です。既存の図面データをベースにしつつ、現地の実測値と照らし合わせて正確なCADデータへと修正・統合いたします。警察の現場調査で指摘を受けない「精緻な図面」に仕上げます。
-
500台を超える大規模店ですが、全国どこでも対応してもらえますか?
-
はい、全国対応しております。遠方の場合も、オンラインでの事前打ち合わせと効率的な現地調査により、スピード感を持って対応いたします。
-
行政書士ですが、図面作成(実測・作図)のみの外注は可能ですか?
-
はい、全国の先生方からの作図依頼を承っております。
「書類作成は自社で行うが、遠方の現地測量が難しい」「CAD操作や複雑な求積計算を外注したい」といった行政書士の先生方をサポートいたします。貴事務所のパートナーとして誠実に対応します。
行政書士みのり事務所へのアクセス
行政書士みのり事務所は千種駅から徒歩5分。中署、千種署、中村署への行き来にも好立地です。
〒460-0007
名古屋市中区新栄三丁目5番1号セントラルビル402 行政書士みのり事務所





